30/01/2025
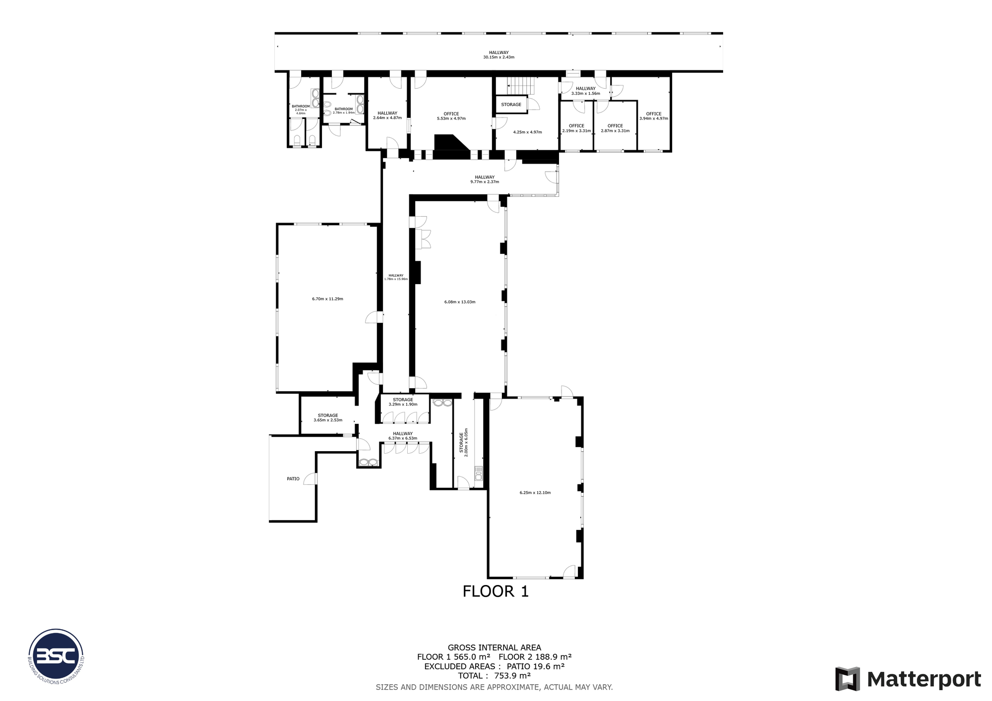
Project Summary: Type of Project: Refurbishment, Extension, and Mezzanine Installation Gross Internal Area (GIA): 887m² Construction Cost: £1.27 million Works Undertaken: Full refurbishment, extension, mezzanine floor installation, and integration of new electrical and mechanical systems within an 8-week summer holiday period This project involved the installation of a new mezzanine floor within the inner quadrangle's wing, the construction of an oak-framed entrance extension linking the quadrangle's wing to an adjacent building, and comprehensive refurbishment works. The aim was to enhance study facilities for day students while preserving the architectural integrity of the Grade II listed buildings. Given the listed status of the site, obtaining listed building consent was essential. The project was successfully completed in 2022.
















